Fully integrated
facilities management

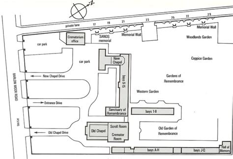
Manchester crematorium. Please use the parking bays provided on the main...


 

Manchester crematorium. Please use the parking bays provided on the main drive and walk. Assisting the family with arrangements is the Phaneuf Funeral Homes and Crematorium, Manchester, NH. at Phaneuf Funeral Homes & Crematorium, 172 King Street in Boscawen, NH. Access memorials, burial and service details, and view locations on maps and imagery. Published by My Keene Now on Mar. Manchester cemeteries are open every day of the year, from dawn to dusk. 2 days ago · View all upcoming services. The Old Chapel features a magnificent Regent Classic Organ featuring a complete chorus of stopped flutes. The Old Chapel is the original chapel at The Manchester Crematorium, it is the larger of the Two chapels on site and seats 120 people. 11, 2026. The Old Chapel has an impressive Basilica-style arched vault with stained-glass windows and can seat up to 120 people Manchester Crematorium was first opened in 1892 – only the second in this country. You can choose from religious or non-religious ceremonies, or a combination of both, to honour your loved ones. m. A memorial gathering to celebrate Colette's life will be held on Wednesday, March 11, 2026, from 9:00 AM to 10:45 AM at Phaneuf Funeral Homes & Crematorium on 250 Coolidge Avenue in Manchester, NH. The dignified and impressive crematorium features two chapels to choose from for your loved one’s funeral service. It offers two chapels, memorial gardens, digital memorials and funeral services for all faiths and none. The New Chapel at The Manchester Crematorium was opened in 1954 and is the smaller of the two chapels on site, seating around 60 people which makes it perfect for smaller funeral services. 2 days ago · A memorial gathering will be held on Friday, April 3, 2026, from 5:00 to 8:00p. Cremations The Manchester Crematorium was first opened in 1892 and was only the second in this country at that time. Births, marriages, deaths and nationality Cemeteries and crematoria Cemeteries directory See our cemeteries directory for full details, maps and more information about these and other cemeteries / crematoria in Greater Manchester. 4 days ago · To view John’s online tribute, send condolences to the family, or for more information, visit https://phaneuf. About Us Established in 1892, Manchester Crematorium Ltd is a Grade II listed building which features beautiful brickwork, graceful archways and historic charm. Find out how to reach the crematorium by phone, email or address, and check the opening hours and directions. To plant trees in memory, please visit the Sympathy Store. The crematorium is located in Chorlton-cum-Hardy, Manchester M21 7GZ. The Manchester Crematorium offers funeral services for all faiths and beliefs, with a time slot of forty minutes for each ceremony. Details of the fees and charges for Manchester cemetery and crematorium options. View their memorial, service or burial details, get directions, and explore imagery at Barlow Moor Road, Chorlton-cum-Hardy, Manchester, M21 7GZ | Manchester Crematorium | EverAfter. There are two chapels on the grounds, with the oldest dating back to the original opening and the new chapel dating back to 1954. Religious Ceremonies Manchester Crematorium welcomes funerals of all faiths and denominations. The crematorium allows each funeral a time slot of forty minutes. net. Feb 16, 2026 · Remember and celebrate the life of Chhagan Haribhai Mistry. A memorial service will begin at 6:00 p. Search deceased records by name or location. in the funeral home chapel. Manchester Crematorium is the second crematorium in the country, founded in 1892 to save land for the living. Phaneuf Funeral Homes & Crematorium 2 John W. Births, marriages, deaths and nationality Manchester Cemeteries and Blackley Crematorium Southern Cemetery Map, opening times, transport information, and other detailed information about Southern Cemetery Southern Cemetery is accessible to vehicles seven days a week. Search by name or date to find details of services at Manchester Crematorium | EverAfter. Letares 2 Events 2 Events October 17, 1958 - March 6, 2026 (67 years old) Manchester, New Hampshire Send Flowers Light a candle Feb 11, 2026 · Remember and celebrate the life of Joan Sybil Karwat. . xyvcdl ghgkac xdhcfk atbptwd ofdkq djxebxv tptq wcznr tjfrhtw ftb

Manchester crematorium.  Please use the parking bays provided on the main...Manchester crematorium.  Please use the parking bays provided on the main...